Ausstattung und Raumkonzept
Der Falkenhof am Brombachsee vereint Großzügigkeit und Rückzug auf besondere Weise.
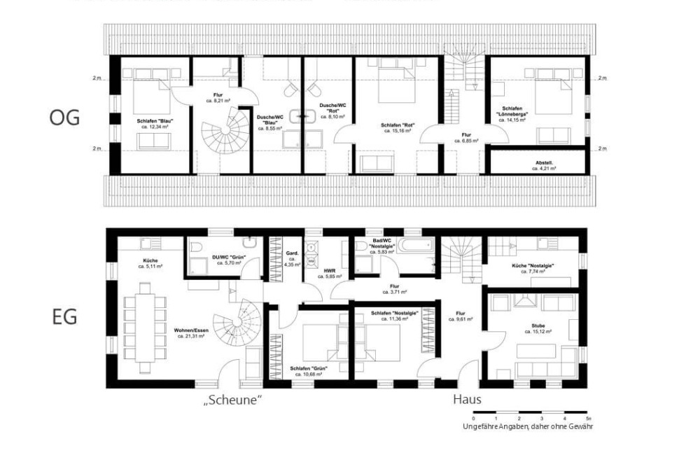
Das Haus besteht aus zwei miteinander verbundenen Einheiten, die in der Regel als gesamter Hof genutzt werden – und genau darin liegt sein besonderer Charakter.
So entsteht ein Ort, der gemeinsames Erleben möglich macht, ohne auf Privatsphäre zu verzichten.

Der Falkenhof als Ganzes
Der Falkenhof bietet großzügige Flächen für Gruppen und Familien, die Wert auf Qualität, Atmosphäre und ausreichend Platz legen. Herzstück des Hauses ist die offen gestaltete Scheune, die als zentraler Treffpunkt dient und Raum für gemeinsame Mahlzeiten, Gespräche und besondere Momente schafft.
Wohnen & Gemeinschaft
Die neu gestaltete Scheune bildet das Zentrum des Hauses – ein großzügiger Raum, der wie geschaffen ist für lange Abende, gemeinsames Essen und gesellige Stunden.
Ergänzt wird dieser Bereich durch die gemütliche Stube mit Kamin, die eine warme, intime Atmosphäre schafft und zum Rückzug einlädt.
Schlafen
Fünf individuell gestaltete Schlafzimmer bieten ausreichend Platz und Rückzugsmöglichkeiten. Ergänzt werden diese durch zusätzliche Schlafgelegenheiten, sodass auch größere Gruppen komfortabel untergebracht werden können.
Jeder Raum verbindet den Charme historischer Elemente mit einem angenehmen Wohngefühl.
Bäder
Vier großzügige Badezimmer mit Dusche sorgen für Komfort und Privatsphäre auch bei voller Belegung.
Ein besonderes Highlight ist das nostalgische Bad mit historischer Badewanne, das dem Haus eine ganz eigene Note verleiht.
Kochen
Der Falkenhof verfügt über zwei voll ausgestattete Küchen mit Geschirrspülern, Backöfen, Mikrowelle und Kaffee Vollautomat.
Damit ist das Haus ideal darauf ausgelegt, auch größere Gruppen mühelos zu versorgen.
Aussenbereich
Der geschützte und komplett eingezäunte Innenhof bietet Raum für entspannte Stunden im Freien. Ob gemeinsames Essen unter dem Pavillion, ein Glas Wein am Abend oder einfach Zeit an der frischen Luft – hier entsteht ein ganz eigener Rückzugsort.
Natürlich ist auch ein großer moderner Grill und ein Schuppen für Fahrräder vorhanden.
Ausstattung im Detail
- Komplette Küchenausstattung
- Kaffeevollautomat
- 2 Geschirrspüler
- 2 Backöfen
- 3 Kühlschränke
- Tiefkühltruhe
- Gratis WLAN
- 2 TV Geräte mit Sat-TV
- 2 Weber Grills
- Kamin
- Feuerschale
- Kalkputz für gutes Raumklima
- Schuppen mit E-Bike Lademöglichkeit
- 2 PKW Stellplätze
Flexibel nutzbar
Der Falkenhof besteht aus zwei eigenständigen Wohneinheiten, die über eine Verbindungstür miteinander verbunden sind.
In der Regel wird das gesamte Haus gemeinsam genutzt.
Auf Wunsch ist jedoch auch eine separate Nutzung möglich – ideal für kleinere Gruppen oder unterschiedliche Reisekonstellationen.













